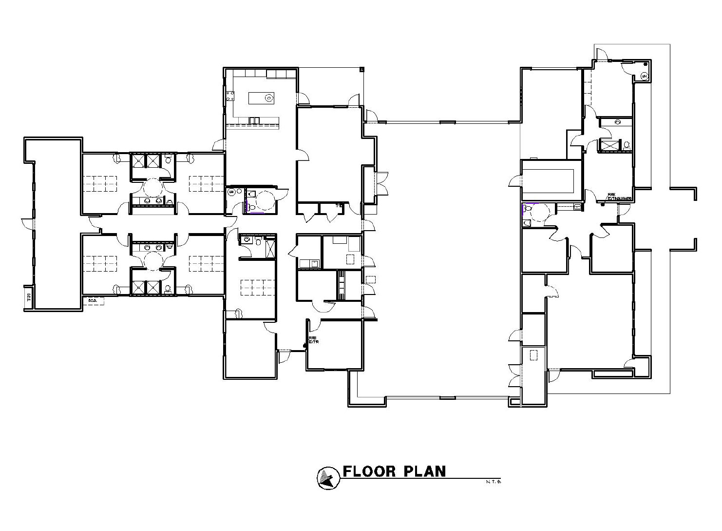
Fire Station No 1
This project included developing a scope of work and designing a new 10,270 square ft. fire station for the Lake Havasu City Fire Department at a total construction cost of $927,800 (within budget). This very modern station house features two apparatus bays, an office, both male and female crew’s quarters, a separate Battalion Chief’s quarters, a weight room, a kitchen, a workshop, several storage rooms, a meeting room, restrooms and a mechanical room. The response vehicles utilizing this location are 1 Battalion Chief’s vehicle, 1 1,500 gallon pumper truck and 1 combination 1,500 gallon pumper/100 ft. aerial ladder truck. This fire station was completed in November 2001.
Location:
Lake Havasu City
